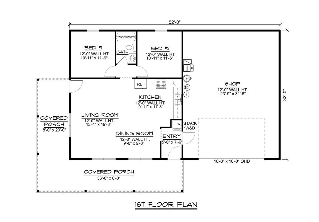
A 896 sq ft Design with 2 Bedrooms and 1 Bathroom

In recent years, barndominiums have emerged as a popular choice for those seeking a unique blend of rustic charm and modern functionality. These structures, which combine the aesthetics of a barn with the comforts of a traditional home, have captured the hearts of many homeowners looking for a cozy yet stylish living space.

In this blog post, we will explore a specific barndominium design featuring a compact floor plan of 896 square feet, complete with two bedrooms and one bathroom. With dimensions of 40 feet in depth, 60 feet in width, and a height of 17 feet 10 inches, this design maximizes functionality while maintaining an inviting atmosphere.

What is a Barndominium?

A barndominium is a hybrid structure that typically combines living quarters with a barn-like exterior. These homes are often constructed from metal or wood and feature open floor plans, high ceilings, and flexible spaces. Barndominiums are not only cost-effective but also provide a unique lifestyle that reflects the beauty of rural living while incorporating modern amenities.

Key Characteristics of Barndominium Design

  • Open Floor Plans: Barndominiums often feature expansive, open layouts that promote a sense of space and connectivity between rooms.
  • High Ceilings: The design typically includes tall ceilings that enhance the feeling of spaciousness and allow for creative interior design options.
  • Durable Materials: Constructed from metal or wood, barndominiums are designed to withstand the elements while providing a warm and inviting atmosphere.
  • Rustic Aesthetics: Exposed beams, large windows, and a blend of modern and rustic finishes create an inviting and stylish environment.
  • Versatility: The open layout allows homeowners to adapt the space to their specific needs, whether for entertaining, relaxing, or working.

Overview of the 896 sq ft Barndominium Floor Plan

This particular barndominium design spans 896 square feet and features two bedrooms and one bathroom. Its compact size makes it an ideal choice for small families, couples, or individuals seeking a cozy living space without sacrificing comfort. The dimensions of 40 feet in depth, 60 feet in width, and a height of 17 feet 10 inches create a spacious feel, thanks to the high ceilings and open design.

Key Features of the Barndominium Design

  1. Inviting Entryway: As you approach the barndominium, you are greeted by a welcoming entryway that sets the tone for the home. The rustic charm of the exterior, often featuring wood or metal siding, draws you in and invites you to explore further.

  2. Open Concept Living Area: The heart of the barndominium is its open-concept living area, which seamlessly integrates the living room, dining space, and kitchen. This layout encourages interaction and makes entertaining a breeze. Large windows allow natural light to flood the space, enhancing the warm ambiance.

  3. Functional Kitchen: The kitchen is designed for efficiency, featuring modern appliances, ample counter space, and a convenient layout. Whether you’re preparing a quick meal or hosting friends, this kitchen provides the functionality you need while maintaining a stylish appearance.

  4. Cozy Living Room: The living room area is perfect for relaxation and socializing. With high ceilings and an open layout, it feels spacious and inviting. This space can be enhanced with comfortable furniture and personal touches, creating a cozy haven for family gatherings or quiet evenings.

  5. Master Bedroom Retreat: The master bedroom is a serene retreat designed for comfort. With enough space for a queen or king-sized bed, it offers a peaceful atmosphere to unwind after a long day. The room may also feature a closet for storage, ensuring that the space remains organized and clutter-free.

  6. Second Bedroom: The second bedroom is versatile and can serve various purposes—whether as a guest room, children’s room, or home office. This flexibility allows homeowners to adapt the space to their needs, making it a valuable addition to the design.

  7. Well-Designed Bathroom: The single bathroom in the barndominium is thoughtfully designed, featuring modern fixtures and a functional layout. It may include a shower or tub, a vanity with storage, and stylish finishes that enhance the overall aesthetic of the home.

  8. Utility and Laundry Area: A designated utility and laundry area is often included in the design, providing a practical space for laundry tasks and additional storage. This area helps keep the living spaces tidy and organized, adding to the home’s functionality.

  9. Outdoor Living Spaces: Many barndominiums emphasize a connection to the outdoors, and this design may include a covered porch or patio area. This outdoor space is perfect for enjoying morning coffee, hosting barbecues, or simply relaxing in nature. Landscaping can enhance the outdoor experience, creating a serene environment for leisure.

The Benefits of Choosing a Barndominium

Opting for a barndominium offers numerous advantages:

  • Cost-Effectiveness: Barndominiums can be more affordable to build than traditional homes, allowing homeowners to maximize their investment.
  • Energy Efficiency: Many barndominiums are designed with energy-efficient features, reducing utility costs and environmental impact.
  • Versatile Spaces: The open floor plan allows for flexible use of space, accommodating various lifestyles and needs.
  • Simplicity of Maintenance: With durable materials and a straightforward design, barndominiums are often easier to maintain than traditional homes.

Conclusion

The 896 sq ft barndominium design featuring two bedrooms and one bathroom is a perfect embodiment of rustic charm and modern convenience. Its thoughtful layout, spacious living areas, and functional design create an inviting atmosphere that is ideal for both daily living and entertaining.

Whether you’re drawn to the unique aesthetic of a barndominium or the practicality of its design, this home offers a lifestyle that celebrates comfort, simplicity, and connection to nature. If you’re considering building or purchasing a home, the barndominium is a distinctive choice that promises to deliver a warm and welcoming environment for years to come. Embrace the charm of barndominium living and discover the joys of a home that reflects your personality and lifestyle.

Leave a Comment